フジテレビジュツの仕事
続・続・最後から二番目の恋
2025年4月~7月放送
- 美術統括
- 柴田 慎一郎
- 美術プロデュース
- 小林 大輔
- アートコーディネーター
- 駒崎 拓也
- 大道具
- 佐藤 大輔
- 大道具操作
- 和田 幸政
- 建具
- 石井 洋介
- 装飾
- 大和田 愛/飛松 理沙/鈴木 美羽/柴田 莉帆/寺田 桃果
- 持道具
- 佐々木 ちほ
- 衣裳
- 佐藤 愉貴子/武井 茉周/細谷 恵子
- メイク
- 石田 あゆみ/箙 あおい
- 視覚効果
- 嶋田 怜加
- 電飾
- 寺田 豊
- アクリル装飾
- 國母 淳一
- 小道具印刷
- 石橋 誉礼
- 植木装飾
- 後藤 健
- 生花装飾
- 牧島 美恵
- フードコーディネーター
- 山﨑 千裕
デザインのヒミツ
ー11年ぶりの再結集ですね。
塩入
キャストの皆さんもそうですが、美術スタッフもかなりの人数が再結集しました。私のように定年している人もいれば、当時はアシスタントだったスタッフがチーフになっているとか。もちろん初めて関わる若手もいますが、和平さんと同じ定年再雇用のスタッフが多数参加してスタジオ収録も同窓会みたいでした。
ー今回の美術セットは11年前を再現しているんですか?
ほぼそうですね。もちろん以前のセットは廃棄されているので、一から作るわけですが、以前のスタッフがキープしていた写真やデータがとても役に立ちました。
11年前の道具帳やCADデータ、小道具の付帳などみんなきっちり残していたんですね。
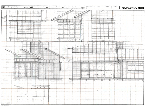
2012 当時の図面
2012 当時の図面
他の番組でも使われたんでしょうが、当時のソファやテーブルも見つかりましたし、「ナガクラ」の店看板やショップカードの現物まで残っていたのには驚きました。
2025 「ナガクラ」メインのテーブル・椅子
2025 2012年の時と同じ額
2025 残してあった「ナガクラ」カード
2025 2012年当時と同じ看板
中でも助かったのが、“塗り”や“背景”のスタッフが当時の美術セットに使った塗料の種類や色番号、壁紙の商品番号を記録していたことです。おかげで「ほぼほぼ再現」が実現できました。
2025 型番記録で同じ内装仕上げに
2025 再現された「ナガクラ」セット
2025
2012
ー11年の時の流れを意識したところはありますか?
逆を言えば、11年経っているので前と全く同じでなくてもいいわけです。家具も適度に変わっていますが気にならないと思います。変えられないのは「間取り」。いざ建ててみると「何で、こんな撮りにくいデザインにしたんだろう」と感じることもありました。以前も自分がデザインしたんですけどね(笑)。
2025 千明の家セット
2025 千明の家セット
2025 千明の家セット
2025 スタジオセット平面図
ただ増えているモノもあります。和平の娘えりなが24歳になっていて、今は美大を卒業して「海ゴミアート」を作っているという設定なので、テラスにはアートの材料になる海ゴミや、作品が飾ってあります。
2025 テラスはえりなの製作スペースに
2025 海ゴミアートの材料棚
2025 海ゴミアート製作材料
2025 テラスに飾られた海ゴミアート作品
(海ゴミアート作家高梨さんの作品をお借りしたもの)
ー当時を再現するのに一番苦労したのはどういうところですか?
実はロケセットなんです。「ナガクラ」と千明の家へのアプローチとなっている小路がありまして、そこでの芝居もまあまあ多いので記憶に残っている方もいると思います。前もその場所をお借りして撮影していたんですが、今回ロケハンに行ってみると、前にはなかった家が建っていて風景が変わってしまっていたんです。両脇の木々も整備されていましたし、「ナガクラ」の入り口にあった柱も、千明の家へ入る門もなくなっていました。
2025 現在のアプローチ小路の様子
2025 ロケ用の大道具図面
結局、そのあたりは全部美術で“作る”ことになりました。植栽を大量に持ち込んでアプローチを飾り、なくなっていた柱と門は大道具スタッフが作りました。
2025 完成したアプローチのロケセット
2025 「ナガクラ」は現在イタリアンレストラン
2025 「ナガクラ」表の門、外壁、「千明の家入り口」を建て込み中
2025 2012年を再現したロケセットが完成
中でも一番大変だったのは、千秋の家の玄関部分です。家に入ってしまえばスタジオセットで収録できますが、外からのショットを撮るには全く別の民家が建ってしまっているのでどうしようもない。そこで、スタジオに建てた玄関部分のセットと同じ物をロケ用に作って建てることに。何やかんやで、ロケの時にはトラック4台分の道具を運搬することになってしまいました。通りかかったご近所の人は、大道具だと聞いてびっくりしていましたよ。
2012 「千明の家」ロケ外観
2025 現在は新築の家が建っています
2025 セット建て込み
2025 完成した「千明の家」ロケセット 後ろの現在の家はCGで消去
2012 当初検討した、実在カフェ(坂の下カフェ)の隣の古民家「千明の家」外観プラン。 結局ナガクラはセット、千明の家もセットで外観は別場所に。
ー2012年第一期当時のデザインコンセプトはどういうものだったのですか?
当時は「古民家カフェ」や「スローライフ」のイメージから、江ノ電沿線やら鎌倉が憧れられていました。実際にいい雰囲気のカフェがあって、監督がそこでオールロケでやりたい、というのがスタートだったので、全部セットでやる事に決まった時は、実在のそのカフェの「古民家を新しい感覚のポップでカラフルな使い方をする」というコンセプトをベースにして、ナガクラの店長「慎平」の作った空間になるようにデザインしています。
2012 当初検討した、実在カフェ(坂の下カフェ)の隣の古民家「千明の家」外観プラン。 結局ナガクラはセット、千明の家もセットで外観は別場所に。
第二期とは2年ほどしか時期が空いていなかったので、意識としては連続した感じでやれたように思いますが、今回はさすがに期間があいたので、みんなの記憶を呼び起こす作業が面白かったですね。「ナガクラ」で皆が朝ご飯を食べるシーンが度々出てきますが、あのテーブルも当時と全く同じモノです。でも「こんな小っちゃかったっけ」とキャストの皆さんは言っていました。人の記憶ってあいまいですよね。
2012 「ナガクラ」店内セット写真
2025 2012年と同じテーブル・椅子
衣裳 佐藤さん
ーこういう機会はめったにないのではないでしょうか。
今回の再結集で特筆すべきは、衣裳とメイク、持道具という出演者と密接にかかわる美術スタッフが当時と同じ人になったということですね。関係性ができていますから、キャストの皆さんも当時を懐かしみつつ、ストレスなく撮影に臨めたのではないでしょうか。
衣裳 佐藤さん
メイク 石田さん
持ち道具 佐々木さん
ー美術として注目してほしい点はありますか?
美術セットもそうですが、目まぐるしく変貌する東京の中心部とは違って、鎌倉界隈の風景は11年経ってもそれほど変わっていませんよね。江ノ電も駅も10年くらいじゃ変わらない。そんな街の空気にしっくり馴染む美術セットになっていれば嬉しいです。ちなみに、今回初めて登場する「医院」など再現ではない“新規セット”もあるんですよ(笑)。
2025 「ナガクラ」テラス外観セット
2025 典子の家のロケセット
2025 成瀬医院ロケセットイメージ図
2025 成瀬医院ロケセット
2025 成瀬医院受付ロケセット
(2025年5月)




