フジテレビジュツの仕事
やまとなでしこ
2000年10月~12月
- 美術プロデュース
- 杉川 廣明
- アートコーディネーター
- 泉 佳子
- 大道具
- 比留間 正幸
- アクリル装飾
- 中村 哲治
- 電飾
- 森 智
- 装飾
- 山内 康裕
- 持道具
- 能勢 直子
- 衣裳
- 小平 理恵
- ヘアメイク
- 森田 京子
- タイトル
- 山形 憲一
デザインのヒミツ
桜子のアパート・セットイメージ画
ーこのドラマの設定や、セットデザインコンセプトなどを教えてください
塩入
このドラマは、“月9”と呼ばれた’80年代後半からの「トレンディードラマ路線」、その反動としての’90年代「リアル追求路線」の後の、2000年の制作です。この頃、再び“月9”ならではの「華やかで夢のあるラブコメディドラマ」をやろうということになって、監督からは「代官山の設定にしよう」という話が最初にありました。
主人公の桜子は、貧しい家庭で育ったトラウマから「お金が最も大事」を信条とする人物で、お金持ちの結婚相手と出会うために、全てのお金を洋服や持ち物に注ぎ、住んでいるのはボロボロの安アパートという設定でした。でも、普通のボロボロのアパートだと、「“月9”の夢のあるドラマに相応しくないんじゃないか」というので、桜子が住んでいるのは、「古いアパートを古着屋に改装した物件」というアイディアでデザインしました。
桜子のアパートセット
桜子のアパートセット
塩入
トレンディードラマのデザインといえば先輩の荒川さん(荒川淳彦・美術デザイナー)ですが、元銭湯だったカフェとか、教会だったレストランなど、古い建造物をリノベーションした物件は今でこそ結構ありますけれど、先輩からは「そういう関係ないものを結びつける発想でデザインするのも面白い」なんて当時教えられました。そういうアドバイスは、桜子のアパートのデザインにも役立ってます。
桜子のアパート外観
その頃から代官山の裏通りには、普通のアパートを改装した古着屋やおしゃれな雑貨屋などが出来始めていました。桜子のアパートの外観も、古い昭和のアパートの代表である同潤会アパートのような造りだったので、元古着屋という発想は自然と出てきました。
桜子のアパート外観
ー実際のスタジオセットの出来あがりはどうでしたか?
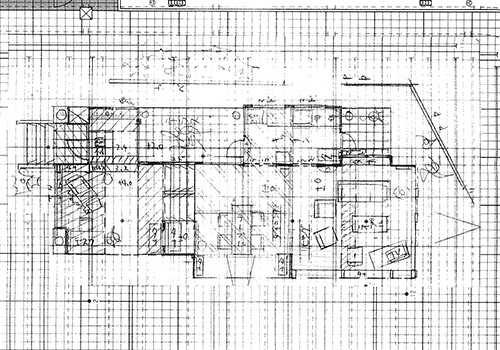
スタジオセット平面図 桜子のアパート・欧介の部屋・佐久間の家
大道具は壁を赤くしました。内装もいい感じに出来たと思います。
元古着屋という設定も、衣装をたくさん持っている桜子のキャラクターに、うまくハマったのではないかと思います。
ただスタジオに建ててみたら、思ったより広くなってしまって、つまり豪華に見えてしまったんです。結局、松嶋さんと監督と話し合って、撮影当日になってからドタバタと狭く作り変えました。それはちょっと計算ミスというか、今は笑って話せますけど(笑)。
ーこの、貧しい漁村もセットなんですか?
桜子の実家 オープンセット
先日の再放送でも出てきましたが、桜子の貧しい少女時代の回想シーンですね。コメディーですから大袈裟に描いているのですが、こういうロケ先を見つける方が難しいので、外観はオープンセットで作りました。内部のシーンは、スタジオにセットを組んで撮影しています。
桜子の実家 オープンセット
ー欧介の部屋はどういうコンセプトですか?
欧介の部屋 スタジオセット・イメージ画
数学好きの真面目な人ですが、お金持ちではないので、桜子にとっては「全く相手にしない人」という設定です。部屋には本がたくさんあって、苦学生とか学者みたいなイメージの畳敷きにしました。実家が魚屋さんで、その二階に住んでいるという設定でしたので、和室にしたのはロケ先の建物の影響でもあります。
欧介の家外観(ロケ) シャッターの文字「魚春」はドラマ用に設置
ー外観がロケで、内部がセットということですね。
そうですね。ほとんどのドラマでは、外観はイメージに合った既存の建物を借りて撮影するので、出入り口や窓の形などを「ロケマッチ」させてセットのデザインを考えます。ですから、まずロケ撮影する建物が決まらないと、勝手にイメージだけではデザインが出来ないという面があります。
ーそうすると外観を決めるのも、結構重要ですね。
はい。通常は、ロケの全体進行を仕切る制作部が探してきた候補地を、監督と主要スタッフで見に行きます。決めるのは監督ですが、カメラマンやデザイナーも意見を言いますし、諸々の条件を確認して決まることが多いです。
欧介の家は、昔からの商店街・住宅街にある木造一軒家の魚屋さんで、店のシーンは本物の魚屋さんをお借りして撮影しています。それにマッチした2階の部屋という設定でデザインしました。
ー佐久間の家のセットについてはどうですか?
佐久間の家 スタジオセット・イメージ画
ここには欧介の先輩の“お医者様夫婦”がお住まいで、欧介をはじめ大学の仲間がいつも集まる家です。多くの人が集まっても大丈夫なくらい「広くて、おしゃれで、快適な」東京のお金持ちの家という設定です。
家の外観もまさにそのような家でしたので、セットイメージもわりとすぐに出来ました。
ー実際にロケ撮影した家と、レイアウトは違うのですか?
佐久間の家 スタジオセット・平面図
そうですね。実際の住宅では、各部屋のプライバシーや独立性を確保するため、玄関からそのままリビングが見えないように、デザインされることが多いですよね。特に一軒家であれば。でも今回のセットデザインは、一つのアングルである程度全体像が掴めるようにレイアウトしています。それと、坂の途中に立っている家だったので、玄関が中2階で、下がってリビングダイニング、上がってリラックスルームという、立体的なレイアウトにしました。当時スタジオセットは、まだ「建てバラシ」が当たり前で、2階建てという手間と時間がかかるものは主流ではありませんでしたから、立体的なセットは存在感があったと思います。そういう面でも、セットはドラマ全体の雰囲気づくりに大きな役割を果たしていると思います。その他、よく出てくるトイレなどは、撮影しやすいようにロケではなくセットで作っています。
ラウンジトイレ スタジオセット・イメージ画
スタジオセット・平面図 桜子の実家・ラウンジトイレ
ありがとうございました。
(2020年7月)


