フジテレビジュツの仕事
アライブ がん専門医のカルテ
2020年1~3月
毎週木曜日 22:00〜22:54
- 美術プロデュース
- 三竹 寛典
- アートコーディネーター
- 山下 雅紀/藤野 栄治
- 大道具
- 内海 靖之
- 大道具操作
- 小野 将志
- 装飾
- 稲葉 裕輔/近藤 美緒
- 持道具
- 木皿 洋子
- 衣裳
- 大友 洸介/塩野谷 由美
- メイク
- 坂本 敦子
- 建具
- 岸 久雄
- アクリル装飾
- 白勢 篤史
- 電飾
- 佐藤 信二
- 視覚効果
- 大里 健太
- 生花装飾
- 牧島 美恵
- 小道具印刷
- 石橋 誉礼
- 植木装飾
- 後藤 健
ビジュツのヒミツ①
腫瘍内科の医局は2階です
今回の舞台は“オンコロ先生”が務める腫瘍内科。
医療ドラマでおなじみのドラマチックな手術シーンはそこそこに
「化学療法室」での患者との対話をじっくり描きます。
抗がん剤治療が中心の医療現場。
ロケハンでの調査をもとにリアルに再現しました。
医療機器や用具はすべて本物またはモックアップなので、
医療指導スタッフによる役者の猛レッスンは必須。スムーズな
使いこなしがドラマのリアリティーを左右するのです。
“オンコロ先生”のデスクはこの階段の上。
セット撮影としては珍しく、
2階に広い面積のオフィスを作りました。
役者もスタッフも上がるので、頑丈な鉄骨がしっかり支えます。
荷重計算はきっちりと。
柱の位置、本数を考えて安全基準をクリア。
病院ですからオペ室も必要です。撮影機材が入り込めるように、スペースを確保して配置しました。
無機質感が支配する病院ですが、セット裏は意外とアナログ。
自動で開くかのごときエレベーターも、扉の開閉は裏方がロープで操作。回数表示のライトも電飾スタッフが芝居に合わせて点灯させます。
こちらが手作り感満載の操作盤。
微妙なタイミングはやはり「人力」が最も信頼できるのです。
スタジオには“オンコロ先生”の自宅のセットもありました。
こちらは打って変わって生活の場。
装飾スタッフが頑張りました。
2020年2月
ビジュツのヒミツ②
デザイン画が実際のセットになるまで
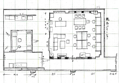
大道具のお仕事、その全ての始まりはこの絵から。
セットデザイナーが描いたデザイン画です。
これは実際のスタジオにどのセットをどう配置するかを示す平面図。俗に“入れ込み”と言われています。今回は病院の基本セットを入れ込み、もう1杯は飾り替えです。
ここから大道具会社スタッフによる設計図面作りがスタート。
セットデザイナーのイメージを大道具製作の大工さんたちに伝える重要な位置にいるスタッフのことを
何故かフジテレビジュツでは「大道具営業」と呼んでいます。
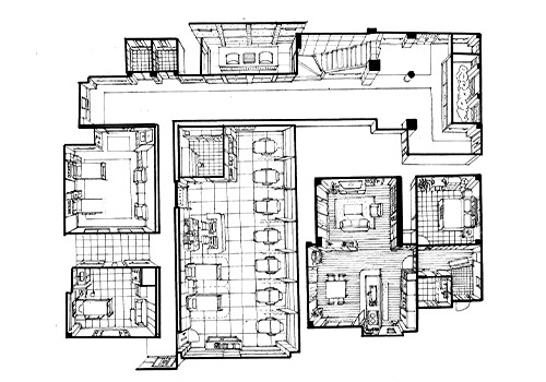
まずは、詳細な平面図を作成。
スタジオフロアをセットごとにエリアで分けて、
そこに使われるパネル全てにナンバリングします。
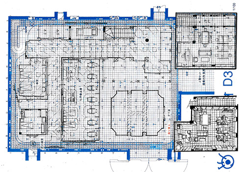
個々のパネルの設計図、いわゆる“書き抜き”がこちら。
この図面があって初めて大工さんの作業が始められるのです。
通常、工場で作ったセットパーツをスタジオで組み立てるので、資材の厚みや材質による伸縮も計算に入れ、
引き戸の開閉の仕組みまできっちり図面にしておかないと、
建て込み現場が混乱してしまいます。
まるでプラモデルの部品を作るような作業。作業過程でズレが
出ないように、ミリ単位の設計が求められます。
そして実は最も重要なのが、
搬入口の大きさと運搬トラックの問題。全てのセットパーツは
4tの特殊トラックに積める大きさで作ります。
分割した場合、現場で組み立てるにはどうしたらいいか、
「大道具営業」スタッフのスキルが問われるのです。
図面に記された謎の記号にも意味があります。
これは建材や表面仕上げの指示。
「SLP832」は壁紙番号、「25-90 Bツヤ」は塗料を指示する
番号です。
左右は壁紙「SLP832」の“貼り”、
吊り戸の上部は「25-90 Bツヤ」の“塗り”仕上げ。
同じ白でも画面ではニュアンスが違って見えます。
他の人が見てもよく分からない暗号を駆使して、
作業員全員に伝わる図面を描く。
デザイナーが全幅の信頼を置く“翻訳家”の仕事です。
もう一つ、コストを抑えるための工夫も重要な任務です。
すべて新規で作ると費用が嵩むので、既製のユニットパーツや
建具のサイズに合わせた微妙な調整が。
これが意外と細かくて大変なんだとか。
「あー、考えることが多すぎるぅ~」などと
愚痴を言う間もなく、黙々と作業は進むのでした。
2020年2月
デザインのヒミツ
ー病院セットはどのようにして今の形に決まっていったのですか?
柳川
監督からは当初、「近代的でスタイリッシュなイメージで」と伝えられました。ですが、ヒューマンドラマという内容と、ロケーションの病院がよくある見慣れた印象の建物だったこともあり、結果、セットも現状のように落ち着きました。
ー「腫瘍内科」という特殊な診療科が舞台ですが、何らかの参考情報はありましたか?
腫瘍内科にある特徴として、化学療法室という治療部屋があります。いくつかの病院をロケハンした際に、実際の化学療法室の内部を見せていただき、医療関係者の話を聴く機会がありました。それもデザインをする上で参考にしています。
ー医療ドラマとして特に意識した点は?
『白い巨塔』をはじめ巨大病院や近代的なものなど、色々な病院のセットを描いてきましたが、今回はヒューマンドラマということで、病院セット全体については、ストーリー展開を邪魔しないよう、あまり際立った部分のない、普通の空間にすることを意識しました。
ー主人公の自宅セットのデザインについてはどのような点を意識しましたか?
主人公の心は脚本家志望の夫と息子の3人家族の設定なので、意識的に書籍を多く飾れるような空間を作りました。
ー実際の病院にはない、演出上のデザインはありますか?
化学療法室は今回のドラマの特徴的な空間なので、通常の病院にあるよりも治療用の椅子の数を増やして、奥行きや臨場感が出るようなデザインにしました。椅子を増やしたことでスタジオに全セットが収まらなくなり、診察室を何度か描き直す必要がありましたが、最終的には納得のいくデザインに行き着きました。
ーデザイナーから監督に提案したアイデアは?
スケール感を出すために、メインセットである病院に長い廊下をデザインしたかったのですが、スタジオサイズの問題もあり、二層構造を提案しました。ここは最もこだわったところです。2階に医局を置いたことで、医局の背景に下を走る長い廊下を映り込ませることができ、躍動感のあるセットになりました。
ー最も苦労したところは?
二層のセットにつきものですが、いかに機能性を高めつつ安全を維持できるか、という構造と安全性両立の問題にはとりわけ頭を悩ませました。
視聴者の方々には、そういった全ての点を見ながらドラマを楽しんでいただきたいですね。
(2020年2月)




